Voorontwerp

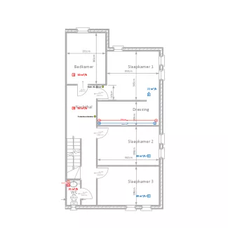
  • Legplan gelijkvloers
  • Legplan verdieping
  • Legplan zolder
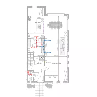
  • Isometrisch plan extractie
  • Isometrisch plan pulsie

Een ontwerp voor Voor nieuwbouwwoningen moet er sinds 2016 een ventilatievoorontwerp gemaakt worden voordat de EPB-startverklaring kan ingediend worden. Dit ventilatievoorontwerp dient door de coördinator ventilatieprestatie goedgekeurd te worden waarna de EPB-verslaggever het ventilatiedossiernummer kan opnemen in de EPB-startverklaring.

Tri-Cam staat in voor elk van de aspecten van het kwaliteitskader ventilatie. Dit kan de coördinator zijn, de voorontwerper, de verslaggever regelbare toevoeropeningen, de verslaggever doorvoeropeningen, de verslaggever regelbare afvoeropeningen en ook de verslaggever mechanische ventilatie. Uiteraard zijn combinaties van elk van deze aspecten ook mogelijk.

Wij leveren een voorontwerp af dat 100% voldoet aan de Ventilatie Voor Ontwerp (VVO) checklist checklist die kan teruggevonden worden op http://www.ikventileerverstandig.be/verslaggevers/